鏈板輸送機聯系我們021-69790948 李小姐. 可根據客戶產品類型及要求進行設計訂制,如果您需要更詳細的鏈板輸送機/鏈板輸送線/鏈板流水線產品信息,解決方案和報價,請聯系在線客服,我們會為您提供熱情的服務。
【鏈板輸送機說明】
鏈板輸送機/網鏈輸送機/鏈板輸送線/鏈板流水線廣泛適于用于食品、罐頭、藥品、飲料、化妝品和洗滌用品、紙制品、調味品、乳業及煙草等的自動輸送、分配、和后道包裝的連線輸送。
鏈板式輸送機可以滿足飲料貼標、灌裝、清洗等設備的單列輸送的要求,滿足殺菌機、儲瓶臺、冷瓶機的大量供料的要求,可將兩條鏈板輸送機的頭尾部做成重疊式的混合鏈,使得瓶(罐)體處于動態過度狀態,使輸送線上不滯留瓶子,可以滿足空瓶及實瓶的壓力和無壓力輸送。
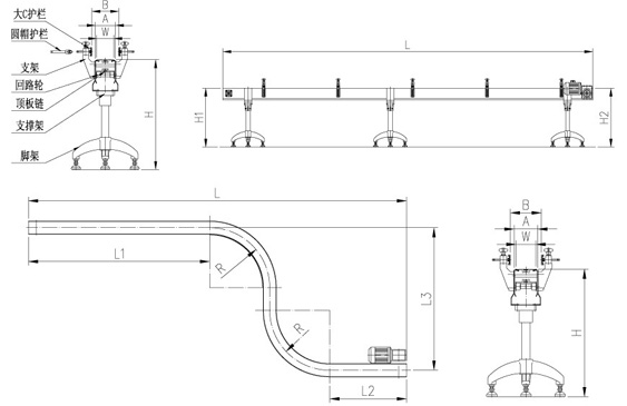
·規格:1.直輸鏈板寬度有63.5、82.5、101.6、114.3、152.4、190.5、254、304.8; ·· 2.轉彎鏈板寬度有82.5、114.3、152.4、190.5、304.8。
·材質:碳鋼、不銹鋼、塑鋼,根據產品的需要可選取不同寬度、不同形狀的鏈板來完成平面輸送、平面轉彎、提升、下降等要求。
主要特點:
1、鏈板輸送機/鏈板輸送線/鏈板流水線的輸送面平坦光滑,摩擦力小,物料在輸送線之間的過渡平穩。
2、鏈板有不銹鋼和工程塑料等材質,規格品種繁多,可根據輸送物料和工藝要求選用,能滿足各行各業不同的需求。
3、輸送速度準確穩定,能保證精確的同步輸送。
4、鏈板輸送機/鏈板輸送線/鏈板流水線一般都可以直接用水沖洗或直接浸泡在水中。設備清潔方便,能滿足食品、飲料行業對衛生的要求。
5、設備布局靈活。可以在一條輸送線上完成水平、傾斜和轉彎輸送。
6、設備結構簡單,維護方便。
多道鏈板輸送機
轉彎鏈板輸送機
夾瓶鏈板輸送機
環形鏈板輸送機
齒形鏈板輸送機

提升鏈板輸送機/鏈板提升機
柔性鏈板輸送機
重型鏈板輸送機
【標準規格圖表】鏈板輸送機/鏈板輸送線/鏈板流水線